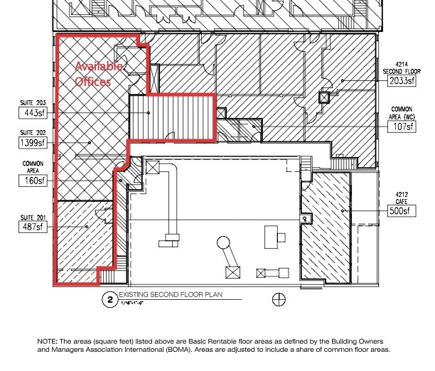
4212 University Way NE Suite 201-203
Home
|
Previous
|
Next